|
|
|
|
|
利根郡みなかみ町相俣 |
|
土地:200坪 建物:25坪 |
380万円 |
| 利根郡みなかみ町相俣の中古別荘です。 「ちのりん村」の中にあります。 銀行融資をお考えのお客様へ |
|||
| 《お問い合わせ》 eメール → 資料請求 housan@mail.wind.ne.jp 電話 → 0278-22-6203 FAX → 0278-23-7877 |
|||
| 【物件概要】 | |
| ★所在地 | 群馬県利根郡みなかみ町相俣 |
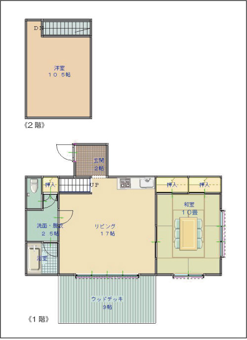
| ★面積 | 土地:664㎡(200坪) 建物:木造2階建 1階 62.94㎡(19坪) 2階 19.87㎡(6坪) 計 82.80㎡(25坪)(平成3年1991年築) |
| ★アクセス | 関越自動車道 月夜野インターより18.8km車で約25分 上越新幹線 上毛高原駅より18.8km車で約25分 JR上越線 後閑駅より車で約25分 |
| ★都市計画 他 | 都市計画区域外(建築確認申請はなし) |
| ★設備 | 東京電力・別荘地の私設水道・ プロパンガス・浄化槽 |
| ★管理費 | 140,000円(年間) 管理運営費と水道代 |
| ★周辺環境 | |
| ★標高 | |
| ★携帯電話 | ドコモ…繋がりにくい ソフトバンク…繋がりにくい au…ほぼ可能 ●携帯はつながりにくい地域です |
| ★取引 | 仲介 *仲介物件の為、不動産仲介手数料がかかります |
| ★備考 | ・固定資産税 年間30,000円 |
| ★物件の説明 | ●当該建物に引込まれている水道は、この別荘地の建物に配給されていますが、滅菌装置が付いていない水道なので、飲むことができません。この水はトイレとお風呂、洗い物等に使用して下さい。 飲み水はペットボトルでご用意頂くか、ウォーターサーバーをご用意ください。 滅菌装置を各個につけると50万円位かかります。 ●冬期の間、前面道路は除雪は管理事務所でしますが、直ぐ来てくれるかどうかはわかりません。とにかく雪が多い地域です。 |
| ★購入費用 | 1)物代金…380万円 2)印紙代…1,000円 3)所有権移転登記…約100,000円 4)不動産仲介手数料…330,000円 5)固定資産税管理費清算金 計4,2341,000 円(概算) |
![]() |
![]() |
|
| 建物…道路側から | ||
![]() |
![]() |
|
| 建物全景…道路側から | ||
![]() |
![]() |
|
| 建物…南側から | ||
![]() |
![]() |
|
| 建物…南側から | ||
|
|
||
![]() |
![]() |
|
| 1階リビング、吹き抜けです | ||
![]() |
![]() |
|
| リビング | ||
![]() |
![]() |
|
| 囲炉裏 | 台所は傷んでいます、交換が必要か? | |
![]() |
![]() |
|
| リビングは吹き抜け | デッキには屋根がついてます | |
![]() |
![]() |
|
| 1階 和室10畳、収納もあり | ||
![]() |
![]() |
|
| トイレ | 洗面台 | |
![]() |
||
| 風呂 | ||
![]() |
![]() |
|
| 2階洋室8帖 | ||
![]() |
![]() |
|
| 別荘地入口 | ||
![]() |
||
| ゴミ置き場も完備 | ||
![]() 【間取り】 *現況優先* |
||

トップページに戻る |